Property Image
Property Image
Property Image
Property Image
Property Image
Property Image
Property Image
Property Image
Property Image
Property Image
Property Image
Property Image
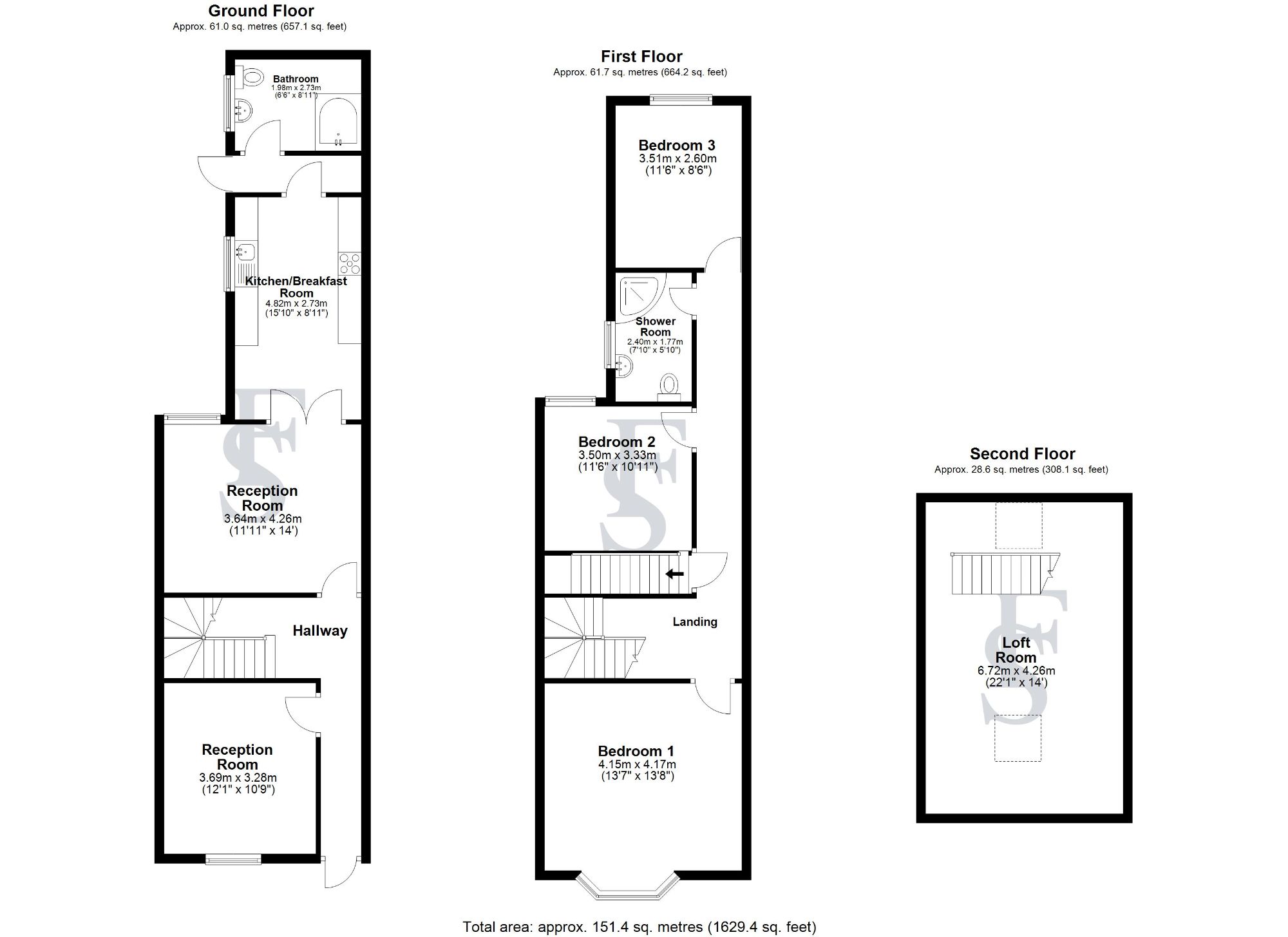
floorplan
epc

3 Beds - Terraced House - For Sale Maidstone Road, Highfields - Offers over £290,000

  • 3
  • 2
  • 2

Spacious Three-Bedroom Terrace Home with Loft Room & Extended Kitchen - Highfields

Key Features

  • Modern Decor

  • Three Double Bedrooms

  • Extended Kitchen/Diner

  • Two Reception Rooms

  • Bathroom & Shower Room

  • Loft Room

  • On Street Parking

We are delighted to present this generously proportioned three-bedroom terrace property located in the heart of Highfields. Boasting a thoughtfully extended layout, this charming home offers ample living space ideal for families, first-time buyers, or investors.

Upon entering the property, you are welcomed by two spacious reception rooms, perfect for use as a lounge, dining room, or home office. The home has been extended to the rear, creating a large open-plan kitchen diner that offers plenty of space for cooking, dining, and entertaining. A downstairs bathroom adds to the practicality and convenience of the ground floor layout.

Upstairs, the first floor comprises three well-proportioned double bedrooms, along with a modern shower room. The property also benefits from a fully converted loft room, ideal as an additional bedroom, study, or hobby space (subject to relevant regulations).

Rooms and Measurements

Ground floor
Reception one 3.28m x 3.69m
Reception two 3.64m x 4.26m
Kitchen breakfast room 2.75m x 6.93m
Bathroom 1.90m x 2.11m

First floor
Bedroom one 4.17m x 4.15m
Bedroom two 3.33m x 3.50m
Bedroom three 2.60m x 3.51m
shower room 1.77m x 2.40m
Landing 0.83m x 8.17m

Loft room 4.26m x 6.72m

Outside
To the rear, you'll find a low-maintenance courtyard garden, complete with outdoor storage, providing the perfect spot for relaxation or alfresco dining. On-street parking is available directly in front of the property.

Location
Located in the popular Highfields area, the property is within walking distance of local schools, shops, places of worship, and excellent transport links into the city centre and beyond.

Viewings and Directions:
Strictly by appointment only through the sole agent Fraser Stretton

Postcode for Sat Nav: LE2 0BA

Council Tax Band: A (Leicester City Council )
Tenure: Freehold


Location

Looking to buy ?

Sign up to receive property updates

Register